Virtual Tour
∎
Video
∎
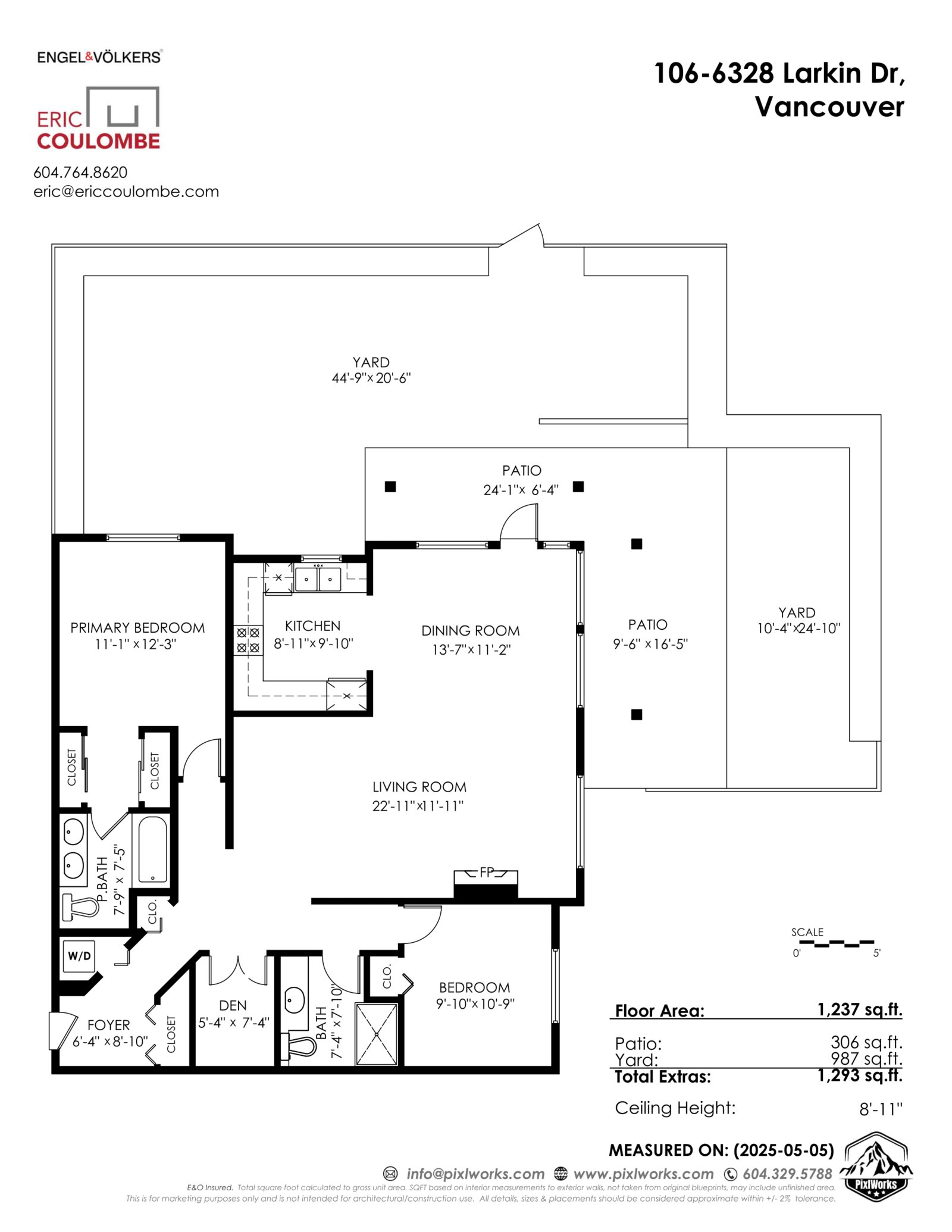
Floor Plans
Amenities
∎
- Giant Patio
- Private Yard
- Hardwood Floors
- Large Kitchen
- Open Floor Plan
- Oversized Windows
- Quiet and Private
- Shopping Nearby
- Stainless Steel Appliances
- Walk-In Closets
- Great Schools
- Den
- Community Centre Nearby
- Playground Nearby
- Rainscreened Building
- EV Charger
- Storage Locker
- 2 Parking
- Bike Storage
- 3rd Bedroom Possible
- Common Roof Deck with Views
106-6328 Larkin Drive
Vancouver, BC V6T2K2














Rela